Plumberow Avenue, Hockley







Features
- Requiring modernisation throughout
- A two bedroom semi detached bungalow
- Lounge/diner
- Kitchen
- Bathroom with separate WC
- Rear garden measuring approx 90ft
- Double length garage
- Off street parking for two/three vehicles
- NO ONWARD CHAIN
- Our Ref: 20479
GUIDE: £325,000-£350,000 Just a stone's throw of railway station and walking distance to shops and schools is this two bedroom semi detached bungalow, requiring modernisation, with approx. 90ft rear garden, own driveway providing off street parking and detached garage. NO ONWARD CHAIN. Ref 20479
GUIDE PRICE: £325,000 - £350,000
OFFERED WITH NO ONWARD CHAIN
Situated in the heart of Hockley within a stone's throw of mainline railway station and walking distance to shops and schools is this two bedroom semi detached bungalow, requiring modernisation throughout, with a rear garden measuring approximately 90ft, driveway providing off street parking and double length detached garage. Council Tax Band: C. EPC Rating: D. Our Ref: 20479.
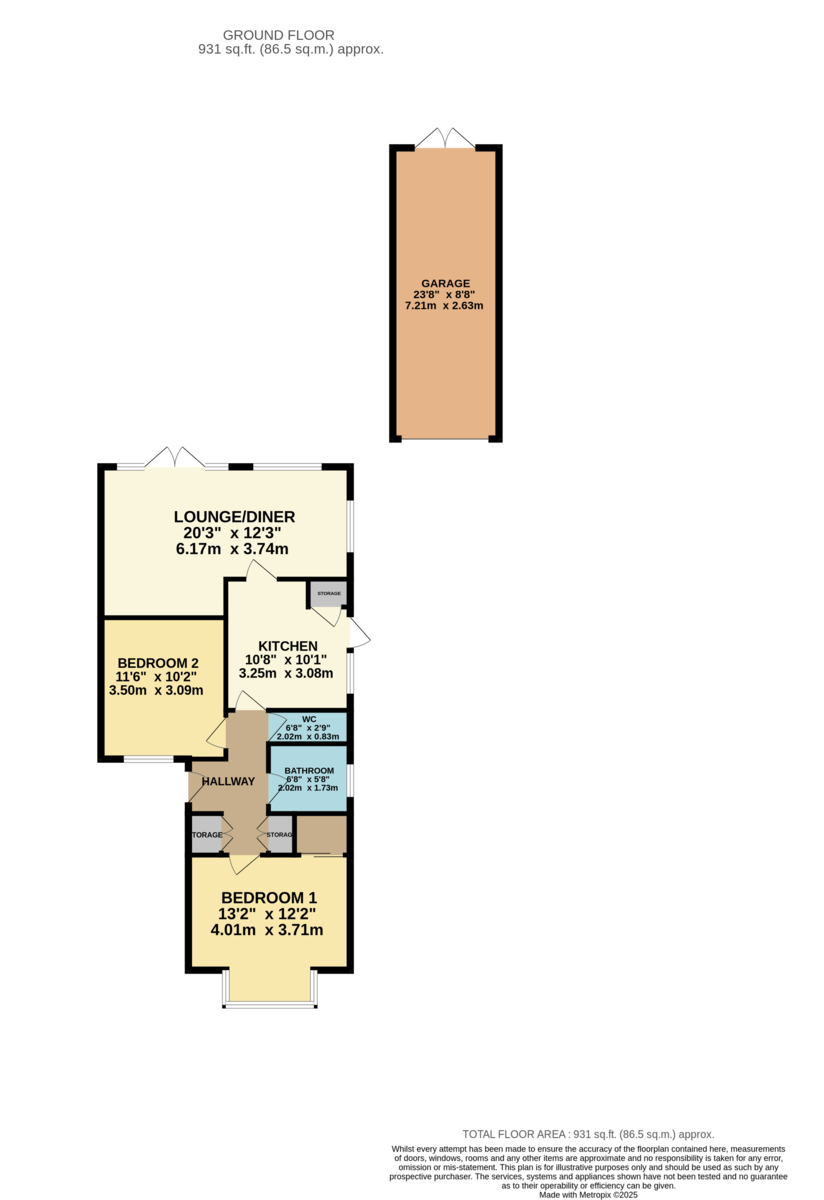
Accommodation comprises:
Entrance via uPVC glazed entrance door to entrance hall.
ENTRANCE HALL Built in storage cupboards and shelving area. Radiator. Access to loft.
BEDROOM ONE 13' 2" x 12' 2" (4.01m x 3.71m) Double glazed bay window to front aspect. Large walk in storage cupboard with sliding doors. Radiator. Textured ceiling.
BEDROOM TWO 11' 6" x 10' 2" (3.51m x 3.1m) Double glazed window to front aspect. Radiator.
BATHROOM Obscure double glazed window to side aspect. A two piece suite comprising bath with electric shower over and wall mounted wash hand basin. Radiator.
SEPARATE WC Obscure double glazed window to side aspect. Close coupled wc.
KITCHEN 10' 8" x 10' 1" (3.25m x 3.07m) Double glazed window to side aspect. Double glazed door to side aspect. A range of base and eye level units incorporating roll top work surface with sink drainer unit. Full height storage cupboard. Space and plumbing for appliances. Tiled splash backs. Textured ceiling. Door to lounge/diner.
LOUNGE/DINER 20' 3" max x 12' 3" max (6.17m x 3.73m) Double glazed window to side and rear aspects. Double glazed French doors providing access to rear garden. Feature fireplace with inset fire. Radiator. Coving to textured ceiling.
EXTERIOR. The REAR GARDEN measures approximately 90ft (27.43m) commencing with patio area leading to garden. Mainly laid to lawn with a selection of mature flower and shrub borders. Door to DOUBLE LENGTH DETACHED GARAGE. Double gates providing access to front.
The FRONT has own driveway providing off street parking for two/three vehicles.
Floor Plans
