Homestead Gardens, Hadleigh
Features
- Three bedroom semi-detached chalet
- Beautifully presented
- Two reception rooms
- Kitchen with utility
- Bedroom one with ensuite
- Southerly backing rear garden measuring in excess of 100'
- Off street parking for two vehicles
- Situated in the heart of Hadleigh Town Centre
- *GUIDE PRICE £450,000 - £475,000*
- EPC rating - D. Our ref: 16598
*GUIDE PRICE £450,000 - £475,000* This charming three bedroom semi-detached chalet is situated in the heart of Hadleigh Town Centre, within short walking distance of local schools, numerous shops, cafés and restaurants and easy reach of Hadleigh Castle and Country Park. Having been built in the 1930s, this beautifully presented property has been lovingly updated to provide a cosy family home, featuring two reception rooms; bedroom one with ensuite and a Southerly backing rear garden measuring in excess of 100'. EPC rating - D. Our ref: 16598
This charming three bedroom semi-detached chalet is situated in the heart of Hadleigh Town Centre, within short walking distance of local schools, numerous shops, cafés and restaurants and easy reach of Hadleigh Castle and Country Park.
Having been built in the 1930s, this beautifully presented property has been lovingly updated to provide a cosy family home, featuring two reception rooms; bedroom one with ensuite and a 100' Southerly backing rear garden.
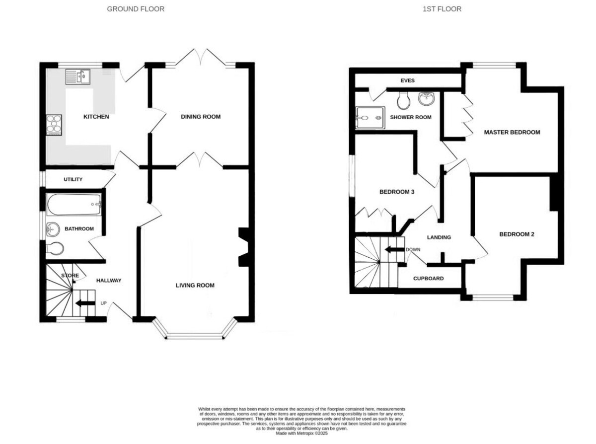
Accommodation comprises:
Entrance via obscure double glazed door to:
HALLWAY Coved ceiling. Stairs to FIRST FLOOR ACCOMMODATION with understairs storage cupboard housing meters. Radiator. Doors to:
LOUNGE 17' 5" x 11' max. (5.31m x 3.35m) Coved ceiling. Double glazed bay window to front aspect. Feature fireplace. Radiator. Wood effect flooring. Double opening doors to:
DINING ROOM 10' x 9' 6" (3.05m x 2.9m) Coved ceiling. Double glazed French style doors leading to REAR GARDEN. Double glazed windows to rear aspect. Radiator. Wood effect flooring. Door to:
KITCHEN 10' 5" x 10' (3.18m x 3.05m) Skimmed ceiling. Double glazed window to rear aspect. Double glazed door to REAR GARDEN. Range of base and eye level units with roll top working surfaces and tiled splashbacks. Inset one and a half bowl stainless steel sink drainer. Inset 5 ring gas hob with extractor over and double oven under. Integrated fridge. Integrated dishwasher. Space and plumbing for washing machine. Wood effect flooring.
UTILITY ROOM Obscure double glazed window to side aspect. Wall mounted boiler.
GROUND FLOOR BATHROOM 6' 10" x 6' (2.08m x 1.83m) Obscure double glazed window to side aspect. Three piece suite comprising close coupled w/c, pedestal mounted hand wash basin and panelled bath with mixer shower over. Extractor fan.
FIRST FLOOR LANDING Double glazed window to side aspect. Door to eaves storage. Doors to:
BEDROOM ONE 11' 8" x 11' 1" (3.56m x 3.38m) Skimmed ceiling. Double glazed window to rear with views across the rear garden and towards Hadleigh Park. Fitted wardrobes. Radiator. Wood effect flooring. Door to:
JACK AND JILL ENSUITE 8' x 4' 2" (2.44m x 1.27m) Skimmed ceiling. Three piece suite comprising close coupled w/c, vanity mounted hand wash basin and shower cubicle. Chrome towel rail. Door to eaves storage.
BEDROOM TWO 11' 4" x 8' 8" (3.45m x 2.64m) Skimmed ceiling. Double glazed window to front aspect. Radiator.
BEDROOM THREE 9' 3" x 8' 9" (2.82m x 2.67m) Skimmed ceiling. Double glazed window to side aspect. Fitted wardrobes. Wood effect flooring. Door to ENSUITE.
OUTSIDE OF PROPERTY: To the FRONT of the property is a block paved driveway providing off street parking for two vehicles. Gated side access.
The REAR GARDEN is Southerly backing and measures in excess of 100'. Commencing with paved patio seating area leading to lawn. Path to rear. Various mature trees and shrubs. Shed to remain.
SUMMERHOUSE with double opening doors and window to front aspect. Power and lighting.
Floor Plans